Բոլոր բաժինները

2 սենյականոց բնակարան նորակառույց շենքում Հակոբ Պարոնյանի փողոցում, 74 ք.մ., նախավերջին հարկ

Երևան
Նախընտրելի

YerevanAM Realty

1sell.am-ում է 13-08-2024 թ-ից

Ապառիկի ձևակերպումով

կիսվել

Շենքի մասին

Մոնոլիտ

Շինության տիպ

Այո

Նորակառույց

Առկա է

Վերելակ

13

Հարկերի քանակ

Դոմոֆոն, խաղահրապարակ

Առկա են

Բացօթյա կայանատեղի, ծածկապատ կայանատեղի

Կայանատեղի

Բնակարանի մասին

74 քմ

Ընդհանուր մակերես

2

Սենյակների քանակ

1

Սանհանգույցների քանակ

3 մ

Առաստաղի բարձրություն

12

Հարկ

Առկա չէ

Պատշգամբ

Առկա չէ

Կահույք

Չվերանորոգված

Վերանորոգում

Նկարագիր

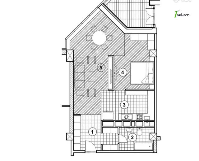
Վաճառվում է 2 սենյականոց բնակարան Պարոնյան փողոցում: Բնակարանը գտնվում է զրոյական վիճակում, ինչը հնարավորություն է տալիս բաժանումներն անել ըստ ցանկության։ Տեղադրված են վիտրաժային պատուհաններ, որոնց շնորհիվ բնակարանը լուսավոր է, և ունի գեղեցիկ տեսարան դեպի փողոց: Ավելի մանրամասն ինֆորմացիայի համար զանգահարել:

Հայտարարության №20527

Տեղադրված է 2024-08-14 08:14

Թարմացվել է 2024-08-14 08:14