Բոլոր բաժինները

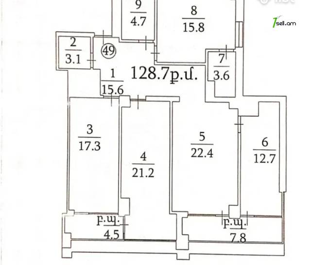
4 սենյականոց բնակարան նորակառույց շենքում Քանաքեռ Զեյթունում, 128 ք.մ., 2 սանհանգույց

Երևան
Նախընտրելի

YerevanAM Realty

1sell.am-ում է 13-08-2024 թ-ից

Ապառիկի ձևակերպումով

կիսվել

Շենքի մասին

Մոնոլիտ

Շինության տիպ

Այո

Նորակառույց

Առկա է

Վերելակ

16

Հարկերի քանակ

Դոմոֆոն, դռնապահ, խաղահրապարակ

Առկա են

Բացօթյա կայանատեղի

Կայանատեղի

Բնակարանի մասին

128 քմ

Ընդհանուր մակերես

4

Սենյակների քանակ

2

Սանհանգույցների քանակ

3 մ

Առաստաղի բարձրություն

12

Հարկ

Բաց պատշգամբ

Պատշգամբ

Առկա չէ

Կահույք

Չվերանորոգված

Վերանորոգում

Տեսարան դեպի բակ, տեսարան դեպի փողոց, տեսարան դեպի քաղաք, տեսարան դեպի Արարատ

Տեսարաններ պատուհաններից

Նկարագիր

Վաճառվում է 4 սենյականոց բնակարան ԵՐԵՎԱՆՆ ԱՓԻ ՄԵՋ բազմաբնակելի համալիրում։ Բնակարանը չվերանորոգված է։ Առկա է բաց պատշգամբ դեպի քաղաք նայող հիասքանչ տեսարանով։ Ցանկության դեպքում հնարավոր է նաև վաճառք վերանորոգված տարբերակով։ Մանրամասների և այլ առաջարկների համար կարող եք զանգահարել։

Հայտարարության №19606

Տեղադրված է 2024-08-13 23:25

Թարմացվել է 2024-08-13 23:25