Բոլոր բաժինները

Հողատարածք բնակելի շինությունների համար Նոր Նորքում, 1920 քմ

Երևան
Նախընտրելի

IMMO

1sell.am-ում է 11-08-2024 թ-ից

Ապառիկի ձևակերպումով

կիսվել

Տեղեկություններ հողատարածքի մասին

Բնակելի շինությունների համար

Տեսակ

1920 քմ

Հողատարածքի մակերեսը

Նկարագիր

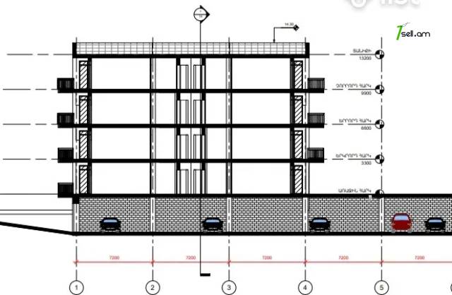
1100400 Գտնվում է Նոր Նորք վարչական շրջանի Բագրևանդի փողոցում, ինժեներական քաղաքի հարևանությամբ։ Բոլոր կոմունիկացիաները (հաղորդակցության ճանապարհները) գտնվում են մոտ Հողատարածքում անցկացված է կոյուղագիծ։ Առկա է էսքիզային նախագիծ և արդեն ստացած նախագծման թույլտվություն (АПЗ), 4 հարկանի բնակելի շենքի, զրոյական հարկում ավտոկայանատեղու: Ավելի մանրամասն հարցերի դեպքում զանգահարեք:

Հայտարարության №18416

Տեղադրված է 2024-08-12 00:05

Թարմացվել է 2024-08-12 00:05